



















Te huur Appartement Verspronckweg 150 C 38 in Haarlem
€ 1993
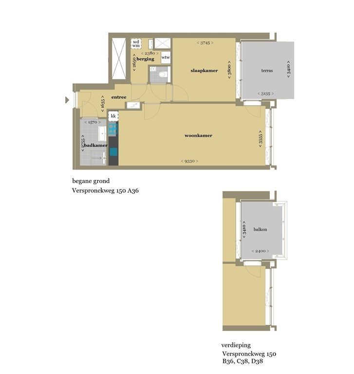
Kamers: 2
Oppervlakte: 67 m²
Type woning: Appartement
Gas/Water/Licht: -
DE FOTO'S VAN HET APPARTEMENT ZIJN EEN IMPRESSIE! Deze woning is gesitueerd in een indrukwekkend monumentaal schoolgebouw uit de jaren 20, gelegen in de gewilde Kleverpark buurt, dat is getransformeerd in 2021 tot 178 luxe, gerenoveerde en nieuwgebouwde appartementen. Bij het complex zijn twee gemeenschappelijke tuinen, een parkeergarage, gemeenschappelijke fietsenbergingen en elektrische deelautos en -fietsen via het bedrijf HELY Deelvervoer. ...... Als je verder klikt kom je bij een nieuwe pagina met uitgebreide informatie over de huurwoning en met de directe contactgegevens van de beheerder